-
Újabb erdőtelepítés
3,5 hektáros területtel bővül a Székesfehérvárt délnyugat felől körbeölelő erdőtömb láncolat, amelynek „Fehérvár Tüdejeként” nemcsak a levegő és a talaj szennyezettségének kiszűrésében, hanem a klíma alakításában is kiemelt szerepe van. Az Alsóvárosi Pihenőpark melletti területen a hétvégén fejezik be a Vadex Mezőföldi Zrt. szakemberei a 21 ezer facsemete ültetését.
2025.12.05. -
Jövő hét elejére elkészülnek
Gyakorlatilag elkészült, és már csak néhány útburkolati jel felfestése van hátra a Horvát István utca és a Hosszúsétatér kereszteződésének kapacitásbővítő átépítéséből. Már csak néhány felfestés hiányzik, amelyekkel – az időjárás függvényében - várhatóan e hét végére, vagy a jövő hét elejére végez a kivitelező.
2025.12.04. -
Elkészült a járdafelújítás
Már a megújult járdaburkolaton közlekedhetnek a gyalogosok a Józsa Attila utca páros oldalán is. A város egyik legszélesebb sétányának felújítása szeptember közepén kezdődött és be is fejeződött. A beruházást teljes egészében önkormányzati forrásból finanszírozták – hangzott el a sajtónyilvános helyszíni bejáráson.
2025.11.12. -
Elkészült a felújítás
Spányi Antal megyés püspök áldotta meg pénteken délelőtt a Szent Imre Gimnázium, Általános Iskola és Óvoda csodálatosan megújult és kibővült Megyeház utcai épületegyüttesét. Az ünnepi alkalmon megemlékeztek az intézmény fennállásának 30. születésnapjáról is.
2025.11.07.
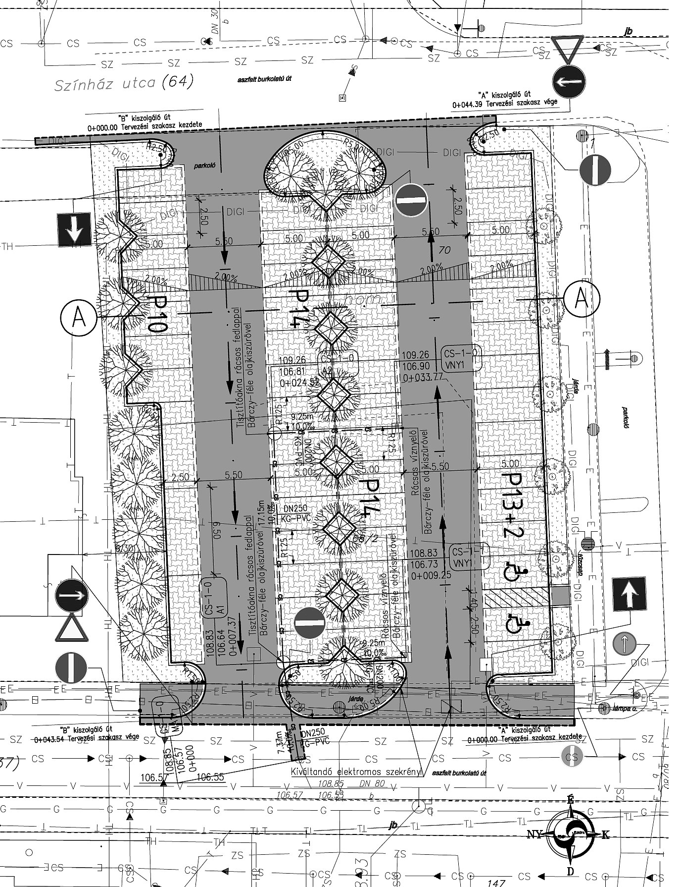
Ötvennél is több parkolót építenek és 18 fát ültetnek a színház mögött
A terveket a Fejér Európa Kft. és a PSZT Mérnöki Kft. készítette, a kivitelezést pedig az Orinoco 2002 Kft. végzi. A Színház utcát és a Dr. Koch László utcát köti össze az 53 férőhelyes parkoló, melyből kettő férőhelyet mozgáskorlátozottak részére alakítanak ki. A parkolók építése 18 db nagy körméretű, előnevelt fa elültetésével jár együtt, így a jelenleginél jóval zöldebb lesz a színház mögötti terület.
Ezen a területen korábban egy parkolóház építését tervezte Székesfehérvár, azonban a környéken élők tiltakozása miatt végül elvetették a tervet. A Dr. Koch László utcai parkolóházból felszabaduló 600 millió forintos európai uniós forrást pedig átcsoportosítással felszíni parkolók kialakítására és a kerékpárút-hálózat fejlesztésére fordítja a város.
A korábban tervezett parkolóházban összesen 137 férőhely lett volna, a mostani, faültetéssel egybekötött parkolófejlesztés során pedig 53 férőhely létesül, amely a környékben élőket, az Okmányirodába és a Belvárosba érkezőket is ki tudja szolgálni. A kivitelezés befejezésének szerződés szerinti határideje: 2018. december 31. A beruházás összköltsége 52 millió forint, amely teljes egészében önkormányzati forrásból valósul meg.
